FSC-C020123

certified

Montažna kuća Albus

POVRŠINA BRUTO 198,12m²
POVRŠINA NETO 130,57m²

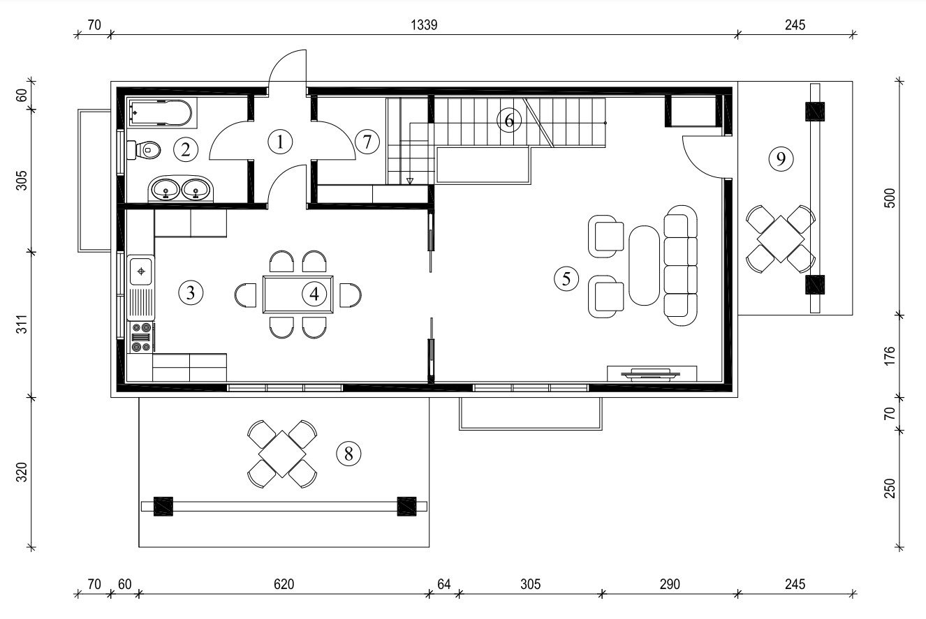
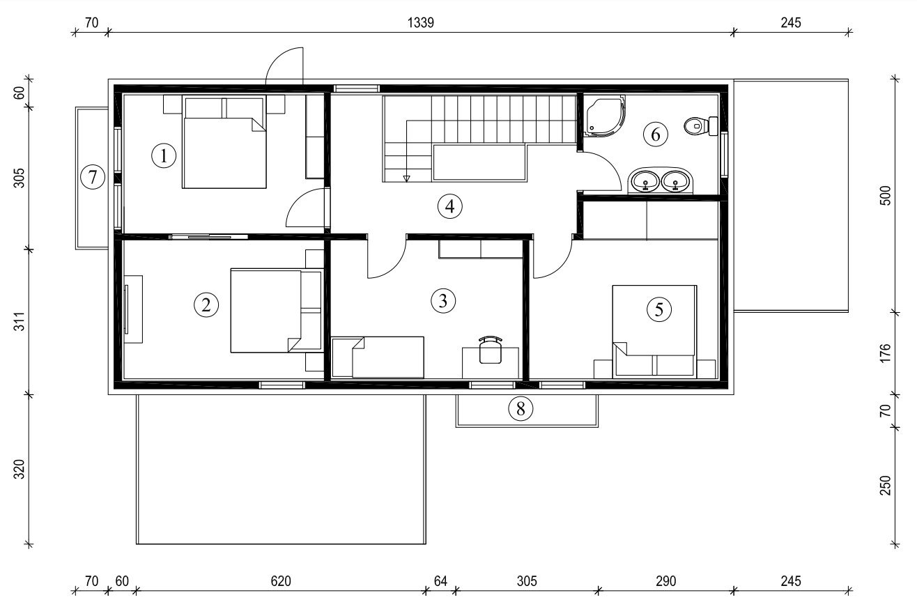
Tlocrti

Ovaj tlocrt možete prilagoditi Vašim vlastitim potrebama i željama. Usluga prilagođavanja ovog tlocrta je besplatna u SAVOX GROUP. Plaćate samo za dodatne troškove tj. za materijal i rad. Smanjenje troškova prilikom novog tlocrta svakako utiče na smanjenje cijene. 

Prizemlje
prizemlje-montazna-kuca-albus
Sprat
montazna-kuca-alubs-sprat

Katalog

Preuzmite naš PDF katalog.

Scroll to Top